23.09.2025 18:17:17
Просмотров: всего 289
Ташкент, Мирзо-Улугбекский район, Паркентская улица
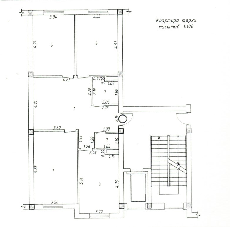
Контакты: +998(93) 801-18-18. Продаётся квартира площадью почти 101 м² на первом этаже тёплого кирпичного дома. Пространства действительно много, и планировку можно сделать под себя — а не под чужой проект. ✨ Высота потолков — 3,2 м: ощущение, что живёшь в доме, а не в обычной квартире. ✨ Комнаты просторные — не только по квадратуре, но и по ощущениям. ✨ Перегородки уже установлены, так что легко выделить: – 3 спальни – кухню-гостиную – 2 санузла – гардеробную Окна расположены достаточно высоко от уровня земли, так что никто с улицы не заглядывает. Балкона нет — и это плюс: не будет ни шума, ни мусора, ни ненужных пристроек. Дом кирпичный — значит, тепло, надёжно и тихо. Подъезд чистый, соседи уже живут. Район зелёный, спокойный, с удобной инфраструктурой. Документы в порядке, один собственник. Торга нет
100 000 у.е.
Автор объявления Сергей Хван
- Местоположение:Ташкент
- Район:Мирзо-Улугбекский район
- Массив, улица:Улица Паркент. дом 239
- Тип недвижимости:Жилая недвижимость / Квартира во вторичке
- Количество комнат:3 комнаты
- Общая площадь, м2:101
- Этаж квартиры:1
- Этажность дома:8
- Вид материала:Кирпич
- Планировка:Спецплан
- Постройки:Новостройка
- Санузел:Раздельный
- Состояние:Без ремонта
- Цена:100 000 у.е.
Вид материала
Кирпич
Постройки
Новостройка
Планировка
Спецплан
Состояние
Без ремонта
Санузел
Раздельный
Удобства
Лифт
Инфраструктура
Супермаркет / Магазин
Детский сад / Школа
Больница / Поликлиника
Остановка
Рынок
загрузка карты...
Средние цены на квартиры!
Мирзо-Улугбекский район
В среднем по городу
Текущее объявление
